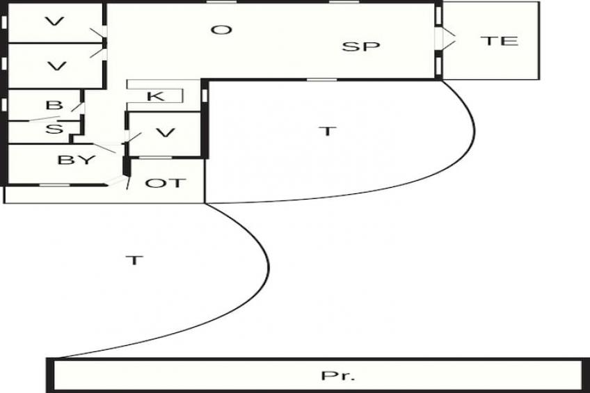
Indeling BF-V4MMW
Algemeen
Dit vakantiehuis voor 6 personen heeft een badkamer, drie slaapkamers en beschikt over twee eenpersoonsbedden en twee tweepersoonsbedden. BF-V4MMW heeft een radio, een TV en een verwarming. Verder is er een sauna, een terras en een set tuinmeubelen. De auto parkeert u onder een carport. De badkamer is uitgerust met een bad of douche en een toilet.
Het vakantiehuis heeft internet (draadloos), een koelkast, een wasdroger, een wasmachine en een vriezer.
Kinderen
Voor de (kleine) kinderen is er een kinderstoel, een babybed en een speeltoestel.
Keuken
In de keuken vindt u een fornuis, een koffiezetapparaat, een kookplaat, een magnetron en een vaatwasser.
Adresgegevens
De contactgegevens van de eigenaar en het adres van BF-V4MMW ontvangt u na het reserveren van het vakantiehuis.
Aanvullende informatie
Am Ende einer Straße findet man dieses einladende Ferienhaus mit Sauna und mehreren Terrassen. Hell und freundlich gestalteter Wohnbereich mit Zugang zur überdachten Südterrasse. Auch einige deutsche Sender im TV sowie Möglichkeit zum Streamen eigener Anbieter. Schönes Naturgrundstück mit windgeschützten Ecken. Ein kleiner Trampelpfad führt hinter dem Haus direkt zum Strandufer. Keine Vermietung an Jugend- oder Handwerkergruppen erwünscht.A refundable deposit might be charged closer to your check-in date. The security deposit ensures a smooth stay and covers any additional services or consumption charges.This deposit covers utilities consumed during your stay and any additional services that may be taken.The final amount will be adjusted based on actual meter readings, actual usage of extra services, and any remaining balance will be refunded within 21 days after checkout.This deposit simply acts as a prepayment for charges that you would anyways pay for, ensuring a seamless stay and check-out experience.
Bijzonderheden
Deze woning wordt vanwege de rust niet verhuurd aan groepen jongeren
Indeling
- Tuinmeubilair
- Speeltoestellen
- Zonne energie
- Lucht-lucht warmtepomp
- Fornuis
- Elektrisch
- Vriezer (1-59L)
- 40 m2
- Satelliet
- Duitse zender (s)
- Deense TV zenders (DR1 en TV2)
- Kinderstoel
- 2-pers. bed
- Ledikant
- 2-pers. bed
- 2x 1-pers. bed
- Vloerverwarming
- Wasbak
- Toilet
- Wasdroger
- Wasmachine
- Sauna (in huis, verwarmd, 6 personen)
- Elektrisch
- Overdekt
In de buurt van BF-V4MMW
Vlakbij BF-V4MMW op zo’n 900 meter treft u één of meerdere eetgelegenheden. In de omgeving, op minder dan 400 meter van de vakantiewoning, is er een meer/open water. Daarnaast is er een supermarkt op 2,7 kilometer. Lekker relaxen kan ook, want in de buurt van BF-V4MMW in Hals kunt u naar het water.
- Restaurant (900 m)
- Water (400 m)
- Supermarkt (2,7 km)
-
Deze vakantiewoning -
Vakantiewoningen in de buurt
Prijs en beschikbaarheid
Om de totale reissom te berekenen dient u hieronder een aankomstdatum te selecteren. Verplichte bijkomende kosten of optionele kosten, die u ter plaatse dient te betalen, vindt u onder de kalender.
De kalender toont u de beschikbaarheid van BF-V4MMW in Hals. Aankomstdagen die nog beschikbaar zijn, worden met donkergroen aangegeven. De lichtgroene dagen tonen u wanneer de woning beschikbaar is en wanneer een datum rood gemarkeerd is, is de woning helaas bezet. Van de grijs gemarkeerde datums is nog geen beschikbaarheid bij ons bekend.
- Beschikbaar
- Aankomst mogelijk
- Bezet
- Nog niet bekend
Hieronder ziet u in welke periodes het vakantiehuis beschikbaar is en de prijs. Door op de ‘Boek nu’ knop te drukken, kunt u eenvoudig een reservering maken via een beveiligde verbinding. Er wordt te allen tijde zorgvuldig met uw gegevens omgegaan.
| Verblijfsduur | Aankomst | Vertrek | Prijs | ||
|---|---|---|---|---|---|
Kosten ter plaatse
| Verplicht | |
|---|---|
| Elektriciteit | DKK 3,40 per kWh |
| Water | DKK 70 per m3 |
| Optioneel | |
|---|---|
| Badhanddoeken | Inclusief in het geval dat u een linnenpakket huurt |
| Bedlinnen | DKK 155 per persoon per verblijf |
| Eindschoonmaak | DKK 1.060 of dient het zelf te doen |
| Keukenlinnen | Inclusief in het geval dat u een linnenpakket huurt |
| Kinderbed | DKK 110 per verblijf |
| Kinderstoel | DKK 110 per verblijf |
Betalingsvoorwaarden en -termijnen
Binnen zeven dagen een aanbetaling van 30% van het totaalbedrag en eventuele annuleringsverzekering. De tweede betaling is uiterlijk zes weken voor vertrek.
Betaalt u in twee termijnen, dan ontvang u een week voor het verstrijken van de tweede termijn een herinnering per e-mail. Vertrekt u binnen zes weken, dan moet de betaling in één keer voldaan worden. Bij een vertrek binnen veertien dagen moet de betaling in één keer en via creditcard, PayPal, iDEAL (alleen Nederland) of Mister Cash (alleen België) voldaan worden.
voor een weekend
Gebaseerd op 93 beoordelingen
- 6
- 3
- 0
Betalingsmogelijkheden
Boeken zonder zorgen
Heeft u nog vragen over dit vakantiehuis of hulp nodig bij het reserveren van de woning? Neemt u dan contact op met onze servicedesk.
Stel een vraag