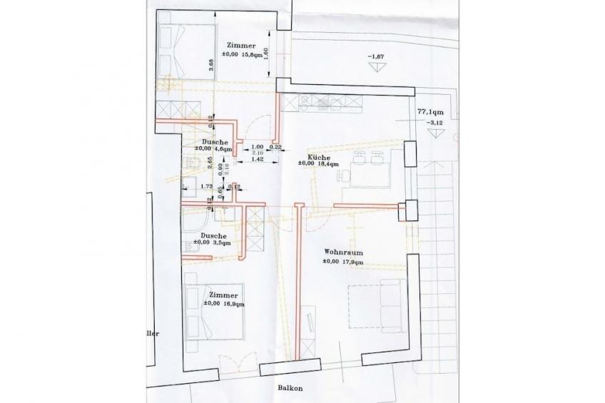
Indeling 270228
Algemeen
Dit vakantiehuis voor 6 personen heeft twee badkamers, twee slaapkamers en beschikt over twee eenpersoons slaapbanken en vier tweepersoonsbedden. 270228 heeft een kachel, vier televisies en zeven verwarmingen. Verder is er een balkon, een hottub, een terras, een set tuinmeubelen, een vijver en een zwembad. De badkamer is uitgerust met drie douches en drie wastafels.
Het vakantiehuis heeft een koelkast en een vriezer.
Keuken
In de keuken vindt u een fornuis, een koffiezetapparaat, een oven en een vaatwasser.
Adresgegevens
De contactgegevens van de eigenaar en het adres van 270228 ontvangt u na het reserveren van het vakantiehuis.
Aanvullende informatie
Breng uw vakantie door in ons nieuwe, hoogwaardig ingerichte appartement met de nieuwste Neff-keukenapparatuur, oven, 4-pits keramische kookplaat, vaatwasser, koelkast en nog veel meer. Twee slaapkamers, twee aparte douches/toiletten, een hal en een woonkamer bevinden zich in een van de mooiste landschappen van de regio Merano, direct aan wandelroutes zoals de Waalweg, Ochsentodweg en Burgweg.
Mindervaliden
- Vrije Ruimte onder wastafel >= 70 cm
In de buurt van 270228
Vlakbij 270228 op zo’n 300 meter treft u één of meerdere eetgelegenheden.
- Luchthaven (30 km)
- Skilift (6 km)
- Centrum (1 km)
- Restaurant (300 m)
-
Deze vakantiewoning -
Vakantiewoningen in de buurt
Prijs en beschikbaarheid
Om de totale reissom te berekenen dient u hieronder een aankomstdatum te selecteren. Verplichte bijkomende kosten of optionele kosten, die u ter plaatse dient te betalen, vindt u onder de kalender.
De kalender toont u de beschikbaarheid van 270228 in Algund. Aankomstdagen die nog beschikbaar zijn, worden met donkergroen aangegeven. De lichtgroene dagen tonen u wanneer de woning beschikbaar is en wanneer een datum rood gemarkeerd is, is de woning helaas bezet. Van de grijs gemarkeerde datums is nog geen beschikbaarheid bij ons bekend.
- Beschikbaar
- Aankomst mogelijk
- Bezet
- Nog niet bekend
Hieronder ziet u in welke periodes het vakantiehuis beschikbaar is en de prijs. Door op de ‘Boek nu’ knop te drukken, kunt u eenvoudig een reservering maken via een beveiligde verbinding. Er wordt te allen tijde zorgvuldig met uw gegevens omgegaan.
| Verblijfsduur | Aankomst | Vertrek | Prijs | ||
|---|---|---|---|---|---|
Kosten ter plaatse
| Verplicht | |
|---|---|
| Bedlinnen | Included |
| Eindschoonmaak | Included |
| Water | Included |
| Optioneel | |
|---|---|
| Badhanddoeken | Included |
| Verwarming | Included |
| Wifi | Included |
| Inclusief | |
|---|---|
| Elektriciteit | |
Betalingsvoorwaarden en -termijnen
Binnen zeven dagen een aanbetaling van 30% van het totaalbedrag en eventuele annuleringsverzekering. De tweede betaling is uiterlijk zes weken voor vertrek.
Betaalt u in twee termijnen, dan ontvang u een week voor het verstrijken van de tweede termijn een herinnering per e-mail. Vertrekt u binnen zes weken, dan moet de betaling in één keer voldaan worden. Bij een vertrek binnen veertien dagen moet de betaling in één keer en via creditcard, PayPal, iDEAL (alleen Nederland) of Mister Cash (alleen België) voldaan worden.
per week
- 6
- 2
- 0
Betalingsmogelijkheden
Boeken zonder zorgen
Heeft u nog vragen over dit vakantiehuis of hulp nodig bij het reserveren van de woning? Neemt u dan contact op met onze servicedesk.
Stel een vraag