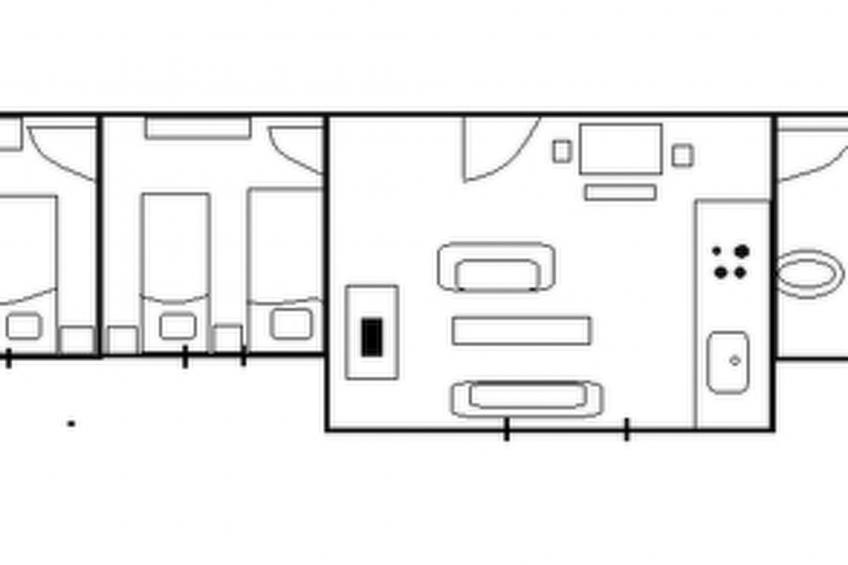
Indeling Reiterstübchen
Algemeen
Dit vakantiehuis is geschikt voor 4 personen, heeft twee slaapkamers en een badkamer. Reiterstübchen heeft een TV (internationale zenders). Verder is er een barbecue, een terras en een tuin. De auto parkeert u op een parking (overdekt). De badkamer is uitgerust met een douche.
Het vakantiehuis heeft een vriezer.
Kinderen
Voor de (kleine) kinderen is er een babybed.
Keuken
In de keuken vindt u een oven en een vaatwasser.
Adresgegevens
De contactgegevens van de eigenaar en het adres van Reiterstübchen ontvangt u na het reserveren van het vakantiehuis.
Aanvullende informatie
Kuchelmiß is located on the A19 motorway. The holiday flat is located in the Nebeltal and is in a renovated marshland stable building (formerly a coach and riding stable), the castle belonging to it unfortunately no longer exists. The building is located directly on the Nebel and about 500 metres away is an old watermill. The Nebel valley offers many cycling and hiking opportunities. Kuchelmiß is located on the Mecklenburg Lake District, which offers swimming and boating opportunities on various lakes, and the surrounding area offers many other leisure activities such as a golf course, bowling alley, observation tower, adventure pool Güstrow, ...... A large communal garden is available for our holiday guests. There are numerous covered seating areas, barbecue facilities and deckchairs as well as plenty of space for children to play and run around. Our garden offers everyone the opportunity to relax in their own way. Separate car parking spaces and storage facilities for your bicycle are also available. Furthermore, you can discover even more in our garden and on request we are happy to offer a guided tour of the farm through our private animal breeding.The holiday flats (newly renovated in 2014) are located on the 1st floor of a former stable (formerly a carriage and riding stable), which has been converted into a guest house. It is a 3-room flat, it is divided into a kitchen-living room, 2 bedrooms and shower/WC:- Cooker- Oven- Dishwasher- Coffee machine- Toaster- Fridge/freezer combination- Electric kettle- Sofa's- Television- Double bed- two single beds (an extra bed is possible here)- Wardrobe.Excursion possibilities: animal, bird, nature park, adventure pool Güstrow, summer toboggan run, monkey forest, climbing park, boat tour on the Krakowersee and Plauersee, Karower Meiler, Draisine near Goldberg, largest rock stones in Germany Bollewick, KARL's strawberry farm, and much moreLocation description: Kuchelmiß is a small village with a fresh market, a sports centre with children's club, a sports field, a lake with swimming area. The attraction of the village is the Nebeltal and the old watermill.From April to September you can linger in our cosy courtyard with a piece of homemade cake and a cup of coffee. We also offer various Aplaka products, which are made from the wool of our alpacas, and if you are spending your birthday with us, you are welcome to pre-order a cake.
type gebouw: meergezinshuis. perceeloppervlakte: 5000m².
In de buurt van Reiterstübchen
-
Deze vakantiewoning -
Vakantiewoningen in de buurt
Prijs en beschikbaarheid
Om de totale reissom te berekenen dient u hieronder een aankomstdatum te selecteren. Verplichte bijkomende kosten of optionele kosten, die u ter plaatse dient te betalen, vindt u onder de kalender.
De kalender toont u de beschikbaarheid van Reiterstübchen in Kuchelmiß. Aankomstdagen die nog beschikbaar zijn, worden met donkergroen aangegeven. De lichtgroene dagen tonen u wanneer de woning beschikbaar is en wanneer een datum rood gemarkeerd is, is de woning helaas bezet. Van de grijs gemarkeerde datums is nog geen beschikbaarheid bij ons bekend.
- Beschikbaar
- Aankomst mogelijk
- Bezet
- Nog niet bekend
Hieronder ziet u in welke periodes het vakantiehuis beschikbaar is en de prijs. Door op de ‘Boek nu’ knop te drukken, kunt u eenvoudig een reservering maken via een beveiligde verbinding. Er wordt te allen tijde zorgvuldig met uw gegevens omgegaan.
| Verblijfsduur | Aankomst | Vertrek | Prijs | ||
|---|---|---|---|---|---|
Kosten ter plaatse
| Verplicht | |
|---|---|
| Eindschoonmaak (de basisschoonmaak wordt altijd door de gast gedaan) | € 40 (01-01-2024 - 31-12-2099) |
| Optioneel | |
|---|---|
| Babybed (tot 2 jaar) | € 10 per stuk per week (01-01-2024 - 31-12-2099) |
| Bedlinnen (eerste set) | € 6 per persoon (01-01-2024 - 31-12-2099) |
| Huisdier (max. 1 dier) | € 2 per stuk per dag (01-01-2024 - 31-12-2099) |
| Inclusief | |
|---|---|
| Energiekosten | |
| Parkeerplaats | |
Betalingsvoorwaarden en -termijnen
Na bevestiging van de boeking moet binnen tien dagen een aanbetaling van 20% gedaan worden van de totale huursom. Vervolgens moet de tweede betaling uiterlijk 42 dagen voor vertrek worden voldaan. Indien u vertrekt binnen zes weken dan moet het volledige bedrag direct worden voldaan.
voor een weekend
- 4
- 2
- 0
Betalingsmogelijkheden
Boeken zonder zorgen
Heeft u nog vragen over dit vakantiehuis of hulp nodig bij het reserveren van de woning? Neemt u dan contact op met onze servicedesk.
Stel een vraag